北干渠路(新桥路-林研所东侧)市政工程道路指路牌施工服务采购的潜在供应商应登录伟德体育官网网站确认后获取采购文件,并于2024年11月8日10:00(北京时间)前提交磋商响应文件。
一、项目基本情况
项目名称:北干渠路(新桥路-林研所东侧)市政工程道路指路牌施工服务采购
采购方式:公开招标
预算金额:78600元(含3%增值税)
工程内容:北干渠路(新桥路-林研所东侧)市政工程道路指路牌施工服务采购详见工程量清单。
工期:10日历天。
最高限价:78600元(含3%增值税),未超出采购最高限价(含单项最高限价)报价有效,超出限价为无效。
招标内容:详见工程量清单及设计图纸;
本项目不接受联合体投标。
二、申请人的资格要求:
(一)本项目的特定资格要求
1、提供合格有效的法人或者其他组织的营业执照等证明文件或自然人的身份证明;
2、法人授权委托书。法定代表人亲自参加投标时,须提供本人身份证复印件;法定代表人授权他人参加投标时,须提供法定代表人委托授权书并出示被授权代表的身份证复印件,非法人单位参照执行;
3、营业执照内含市政工程道路交通设施施工等相关内容
三、获取采购文件
1、2024年 10月31日- 2024年11月6日;
2、地点及方式:伟德体育官网网站。
四、响应文件提交
1、首次响应文件递交截止时间:2024年11月8日08:00分-10:00(北京时间);
2、提交首次响应文件的方式
(1)本项目采用“线下”开标形式,各潜在供应商自行获取文件后,填写并自行打印盖章,一式二份,含营业执照级资质证件复印件盖章;密封后在规定的时间内递交采购人,逾期将视为放弃,不再接收。
(2)低价中标原则,总价最低者中标。
五、开启
1、时间:2024年11月8日10点00分(北京时间)
2、地点:杨凌示范区高干渠路东段3号公共服务中心810室。
六、公告期限
自本公告发布之日起5个工作日。
七、凡对本次采购提出询问,请按以下方式联系。
釆购人信息
名 称:陕西工园建设工程有限公司
地 址:杨凌示范区高干渠路东段3号公共服务中心810室
联系人:高工
联系方式:029-87075062
陕西工园建设工程有限公司
2024 年 10 月30 日
法定代表人授权书
致:陕西工园建设工程有限公司 | |||||
被授权人 | 姓 名 | 性 别 | |||
职 务 | 手机号码 | ||||
联系电话 | 图文传真 | ||||
通讯地址 | |||||
网 址 | |||||
被授权项目与内容 | 项目名称 | ||||
文件编号 | |||||
授权范围 | 全权办理本采购项目的竞标、联系、洽谈、签约、执行等具体事务,签署全部有关的文件、文书、协议及合同。 | ||||
法律责任 | 本公司对被授权人在本项目中的签名承担全部法律责任。 | ||||
授权期限 | 本授权书自磋商大会之日计算有效期为90天。 | ||||
授权人身份证复印件 | 被授权人身份证复印件 | ||||
复印件加盖公章 | 复印件加盖公章 | ||||
供应商:(加盖公章) 法定代表人或授权代表: (签字或盖章)
重要提示:
1.非法定代表人参加磋商响应的须有法定代表人授权,并要求磋商响应文件正本内附授权书原件,否则作为符合性审查不合格处理,磋商响应文件自动失效。
2.本授权书有效期应自磋商大会之日计算不得少于九十天。
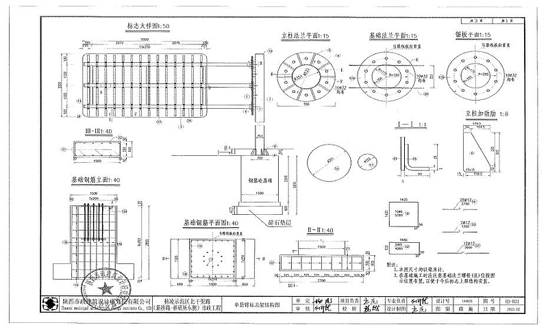
北干渠路(新桥路-林研所东侧)市政工程道路指路牌施工报价清单 | |||||||
序号 | 项目名称 | 规格、型号 | 计量 单位 | 工程数量 | 金额(元) | ||
全费用单价最高限价 | 含税报价 | 合价 | |||||
1 | 标志牌制作、安装 | 5000*3000*3mm,采用铝合金板制作,二级反光膜,详见图纸 | 块 | 2 | 8500 | ||
2 | 标志杆F杆制作、安装 | 立杆φ351*14*8770 横臂φ152*10*6635mm*3支 立柱法兰Ф700*24 悬臂法兰2800*300*22,详见图纸 | 套 | 2 | 25000 | ||
3 | 标志杆基础 (含挖填土方、余方弃置、钢筋制作绑扎、模板支设、C25砼浇筑) | C25钢筋混凝土基础,上部基础尺寸1.5*1.5*2.2、下部扩大基础2.7*1.5*0.6 ,包含预埋件,详见设计图纸 | 座 | 2 | 5800 | ||
合计 | |||||||
注:1.以上报价含税金(3%增值税专用发票)人工、机械设备、材料、人员住宿、安全、环保、措施费、规费等一切建设工程所需的费用。其中措施项目费包含环境保护、文明施工、安全施工、裸土覆盖、不可预见风险、临时设施、夜间施工等一切措施费用。 2.工程量据实结算,不因工程量的增减而调整全费用综合单价。 3.各种计算数字“四舍五入”保留二位小数。 | |||||||


