陕西杨凌综合物流园18#厂房配电工程采购公告
陕西杨凌综合物流园18#厂房电力配套项目采购的潜在供应商应登录伟德体育官网网站确认后获取采购文件,并于2025年2月6日10点30分(北京时间)前提交磋商响应文件。
一、项目基本情况
项目名称:陕西杨凌综合物流园18#厂房电力配套项目
采购方式:公开招标
预算金额:900000元(含9%增值税)
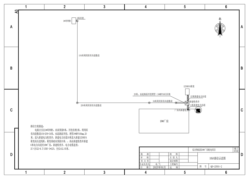
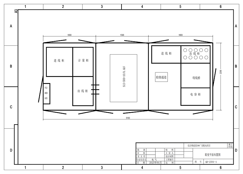
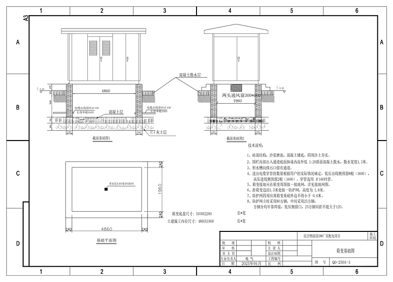
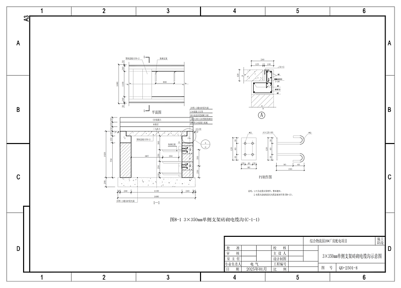
工程内容:陕西杨凌综合物流园18#厂房电力配套项目采购,施工详见附件1。
工期:20日历天。
最高限价:900000元(含9%增值税),未超出采购最高限价报价有效,超出限价为无效。
招标内容:详见附件1;
本项目不接受联合体投标。
二、申请人的资格要求:
(一)本项目的特定资格要求
1、申请人为国内依法注册的独立法人企业,具备合法有效的营业执照(有效期内)。
2、法人授权委托书。法定代表人亲自参加投标时,须提供本人身份证复印件;法定代表人授权他人参加投标时,须提供法定代表人委托授权书并出示被授权代表的身份证复印件。
3、申请人具备国家建设行政主管部门颁发的电力工程施工总承包二级及以上资质; 具备有效的安全生产许可证;申请人具备国家能源局颁发的承装(修、试)电力设施许可证,承装三级、承修三级、承试三级及以上资质;
4、申请人在人员、设备、资金等方面具备相应的施工能力。且申请人拟派项目负责人具备机电工程专业二级注册建造师执业资格和有效的安全生产考核合格证书,且未在其他项目任职.
5、无重大违法记录声明:参加本次政府采购活动前 3 年内在经营活动中没有重大违法记录,以及未被列入失信被执行人、重大税收违法案件当事人名单、政府采购严重违法失信行为记录名单的书面声明。
6、信用记录:通过“信用中国”网站(www.creditchina.gov.cn)和中国政府采购网(www.ccgp.gov.cn)查询相关主体无失信记录(网站查询的截图,加盖投标人公章)。
三、获取采购文件
1、2025年 1月25日- 2025年2月6日;
2、地点及方式:伟德体育官网网站。
四、响应时需提供的资料
响应人资料二份,所有资料要求加盖公章,具体内容包括:
1、法定代表人亲自参加投标时,须提供本人身份证复印件;法定代表人授权他人参加投标时,须提供法定代表人委托授权书并出示被授权代表的身份证复印件。
2、营业执照、安全生产许可证复印件;
3、招标文件要求的资质证明:电力工程施工总承包二级及以上资质;国家能源局颁发的承装(修、试)电力设施许可证,承装三级、承修三级、承试三级及以上资质;拟派项目负责人具备机电工程专业二级注册建造师执业资格和有效的安全生产考核合格证书。
4、招标文件要求的不良信用和不良行为证明;
5、近三年在经营活动中没有重大违法记录的书面声明;
6、报价单;
7、响应人认为有必要说明的其它事项;
8、资料要求用档案袋封装,并在封口处加盖公章。
五、响应文件提交
1、响应文件递交截止时间:2025年2月6日10:00分(北京时间);
2、提交响应文件的方式
(1)本项目采用“线下”开标形式,各潜在供应商自行获取文件后,填写并自行打印盖章,一式二份,密封后在规定的时间内递交采购人,逾期将视为放弃,不再接收。
(2)投标文件满足招标文件全部实质性要求,且按照评审因素的量化指标评审得分最高的投标人为中标候选人。
六、开标时间及地点
1、时间:2025年2月6日10点30分(北京时间)
2、地点:杨凌示范区高干渠路东段3号公共服务中心805室。
七、公告期限
自本公告发布之日起3个工作日。
八、凡对本次采购提出询问,请按以下方式联系。
1、釆购人信息
名 称:伟德体育官网
地 址:杨凌示范区高干渠路东段3号公共服务中心805室
项目负责人:胡工
联系方式:029-87036083
法定代表人授权书
致:伟德体育官网 | |||||
被授权人 | 姓 名 | 性 别 | |||
职 务 | 手机号码 | ||||
联系电话 | 图文传真 | ||||
通讯地址 | |||||
网 址 | |||||
被授权项目与内容 | 项目名称 | ||||
文件编号 | |||||
授权范围 | 全权办理本采购项目的竞标、联系、洽谈、签约、执行等具体事务,签署全部有关的文件、文书、协议及合同。 | ||||
法律责任 | 本公司对被授权人在本项目中的签名承担全部法律责任。 | ||||
授权期限 | 本授权书自磋商大会之日计算有效期为90天。 | ||||
授权人身份证复印件 | 被授权人身份证复印件 | ||||
复印件加盖公章 | 复印件加盖公章 | ||||
供应商: (加盖公章) 法定代表人或授权代表: (签字或盖章)
重要提示:
1、非法定代表人参加磋商响应的须有法定代表人授权,并要求磋商响应文件正本内附授权书原件,否则作为符合性审查不合格处理,磋商响应文件自动失效。
2、本授权书有效期应自磋商大会之日计算不得少于九十天。
3、 本次价格不仅包含工程所涉及的所有费用(如材料、人工、机械设备、人员住宿、安全、环保、措施费、检验试验、资料整编费、水电费、规费等一切建设工程所需的措施、协调费用。其中措施项目费包含环境保护、文明施工、安全施工、临时设施、临时道路、现场围挡、扬尘污染治理、冬雨季、夜间施工、二次搬运、测量放线等一切措施费用。),还包含设计费和调试费。
4、 本次所涉及变压器、电缆、电气元件、柜体及成套设备等均要求为国内一线品牌。
5、工程款分三次支付。第一次为:安装完成且通电调试合格后,支付至合同价款的90%。第二次为结算完成后,支付至结算价款的97%第三次为尾留结算价款的3%作为质保金,待质保期满后一次支付清。
附件一 :陕西杨凌综合物流园18#厂房电力配套项目内容清单















